The Fratry, Carlisle Cathedral

Carlisle, UK
2014-2020

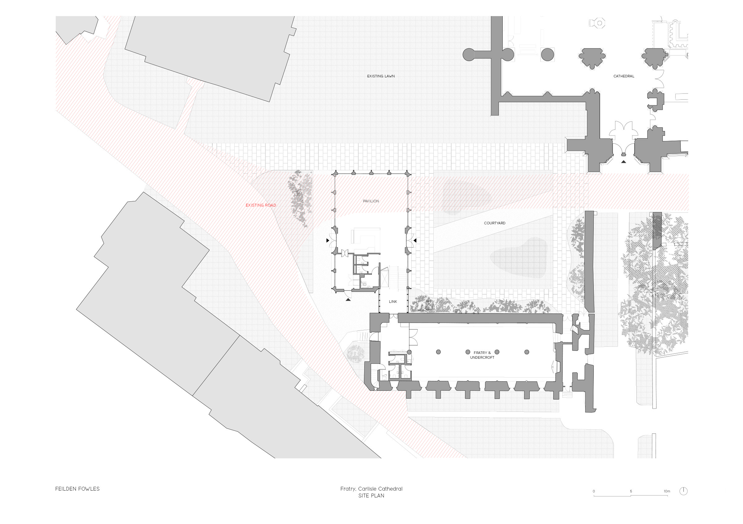
Feilden Fowles completed the transformation of the Grade I-listed medieval Fratry at Carlisle Cathedral – the most significant physical intervention on the cathedral site for more than 150 years. The project creates a new entrance to the refurbished Fratry hall and undercroft through a newly built red sandstone entrance pavilion. The project gives the Fratry renewed purpose and welcomes the public for the first time, enriching the cathedral’s benefits to the wider community.

Historic Reference

Carlisle Cathedral in Cumbria, founded as an Augustinian priory and a cathedral from 1133, has seen many uses: a dining hall (Fratry), kitchen, worship space, arsenal, Civil War storeroom, chapter house, brewery, granary, barn, and library. This project revitalises the Fratry with a new pavilion, café, and meeting point, creating a reflective public space at the cathedral precinct’s heart. The pavilion sits northwest of the Fratry, on the former west range of the original priory cloister, destroyed during the Reformation. Previously a dead, windswept thoroughfare, the pavilion and its green fringe define a new space, positioned 90 degrees to the Fratry, aiming to evoke the cloister’s contemplative atmosphere that inspired its design.

Gothic Arches

The elevations of the pavilion are inspired by Gothic arches found across the cathedral precinct, particularly the western window of the Fratry. The dropped arch profile fans out to a simple rectilinear leading edge, which has a refinement reminiscent of the Perpendicular Gothic tracery found in the east window of the cathedral. The resolution of the curved and perpendicular forms creates a subtle play of light and shadow across the sandstone elevations.

Intersection of Craft and Modernity

The design balances high-tech innovation (CNC-cut stone, 3D and 2D modelling) with low-tech solutions (specialist hand carving) to enhance the historic precinct and create a pleasant space to dwell. The solidity of the pavilion’s stonework and contrasting transparency of the glazed bays formed by the arches provide visitors clear views to the cathedral and the surrounding listed buildings. The new welcome area and public café forms a dedicated space for the clergy to greet visitors, and enables the cathedral to engage with more people in new ways and transform its teaching and learning activities.

Reversing the Arch

Entry to the Fratry itself is through a new lightweight, fully-glazed, bronze structure, accessed via stairs or lift at the southern end of the pavilion. The slender triangular stantions and diagrid ceiling were designed in collaboration with engineers Structure Workshop and inspired by the stone ceiling motifs in the Fratry pulpit.

Fratry Hall and Undercroft

The Fratry project also marks the opening of the existing hall to all for the first time – to visit the library and attend events. Spatially, both the Fratry hall and undercroft have been de-cluttered by removing partitions and barriers which subdivided the spaces. The refurbished undercroft has been opened up to enable views down its full length so that the space may be used for teaching and learning activities with local schools and communities.

Project Information

Client: Carlisle Cathedral
Location: Carlisle
Sector: Heritage
Commissioned: 2014
Status: Completed 2020
Budget: £2.49 million
GIA: 1665sqm

Team

Structural Engineer: Structure Workshop
M&E Engineer: BCA
Main Contractor: Cubby Construction
Project Manager: FWP
Quantity Surveyor: FWP

Selected Press

March 2021, The Architectural Review, ‘Prayer and repair: Carlisle Cathedral in Carlisle‘, Rosie Gibbs-Stevenson
September 2020, Architecture Today, ‘Gothic Revival‘, Jack Richards
October 2020, The Guardian, ‘Carlisle Cathedral Fratry review – poised and intelligent‘, Rowan Moore
October 2020, Architects’ Journal, ‘Deceptively bold: Feilden Fowles’ Fratry building at Carlisle Cathedral‘, Owen Hopkins
November 2020, The RIBA Journal Magazine, ‘Feilden Fowles makes light work at Carlisle Cathedral‘, Eleanor Young

Selected Awards

2022, RIBA National Award, The Fratry, Winner
2022, RIBA Regional North West Awards, The Fratry, Winner
2022, RIBA North West Project Architect Award, The Fratry, Winner
2021, EU Mies Awards, The Fratry, Nominee
2020, CECA Collaborative Partnerhsip Award, The Fratry, Winner
2020, Schuco Excellence Awards, The Fratry, Viewers’ Choice Award
2020, Schuco Excellence Awards, The Fratry, Cultural Building Winner

Related Projects