Ralph Allen School Masterplan

Bath, UK
2010-Ongoing

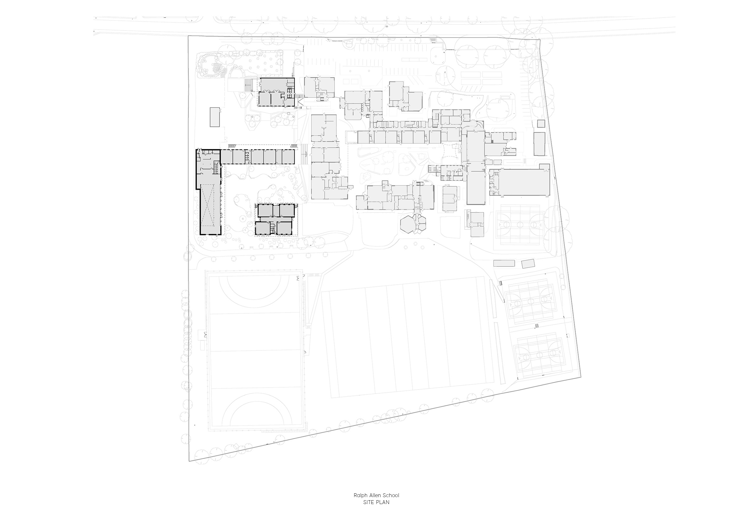
Since 2010, Feilden Fowles has been working closely with Ralph Allen School, a co-educational comprehensive secondary school in Bath, on a range of projects, from landscape interventions to multiple new buildings. Central to the success of these initiatives has been the creation and continuous evolution of a campus masterplan, designed to guide and focus interventions in line with the school’s ambitions and evolving requirements. The masterplan is informed by consistent principles: removing dilapidated buildings, opening views to the Cotswolds, renovating ageing fabric, creating landscaped courtyard gardens for socialising and play, and enhancing the site’s identity with improved teaching and learning facilities.

Site History

Ralph Allen School occupies a site on the south‑eastern edge of Bath, set within a city shaped by regional, social and architectural history. Established in 1958 to serve the growing post‑war community, the campus has gradually evolved, with successive building plans shaping its current form. Over time, a series of temporary structures and ad‑hoc expansions were added, resulting in a fragmented campus. The ongoing masterplan unifies these interventions, guiding the design and construction of new school buildings, including two to three current projects, while leaving space for future development. Landscaped courtyards, open views to the Cotswold Hills, and reorganised social spaces connect learning environments to the broader landscape, maintaining a balance between heritage, pedagogy, and ecological sensitivity.

The Lee Centre – 2013

The Lee Centre, the first key element of the Ralph Allen School masterplan, forms a new cornerstone for the campus. This two-storey Applied Learning Centre focuses on science and comprises four classrooms arranged in adjoining pairs around a double-height breakout space for independent study. Designed as a fully navigable building, classrooms open directly onto the surrounding learning landscape. Its flexible, open spaces promote a university-style approach to learning rather than a traditional school model. Built in cross-laminated timber, the building is partly embedded in the landscape and accessed via ramps to the first-floor gallery. A hung larch façade with vertical rhythm gives way to dark-stained timber below. Materials include polished limecrete floors made from on-site limestone and rammed earth.

The Rose Building – 2014

As part of the Ralph Allen School masterplan, the Rose Building replaces outdated temporary structures on the south of the campus with a purpose-built teaching block on the west side. Its position mirrors the original block, marking either end of a new east-west “street” through the school. South of the Applied Learning Centre, it forms a new courtyard of similar scale to the main quad.

Construction follows strategies from the Applied Learning Centre, using a cross-laminated timber structure exposed in each classroom and timber cladding along the north walkway facing the courtyard. Soft timber linings along two internal links connect the courtyard to the southern landscape and covered walkway, emphasising “cuts” through the solid mass.

The Katherine Johnson Building – 2020

Delivered as the second phase of Ralph Allen School’s masterplan, the Katherine Johnson Building provides a new eight-classroom teaching block for the Maths department, along with a staff room, learning resource centre (LRC), and WC facilities. The building reflects the light masonry palette found throughout the campus, featuring generous covered external staircases and balconies. Each classroom is dual aspect, with views to the landscaped courtyard and/or the valley beyond. Centrally located, the staff room and LRC enable passive supervision of the courtyard. Generous circulation spaces allow views in all directions and accommodate smooth movement during class changeovers.

Encouraging outdoor circulation

The new courtyard continues the language of existing landscaped gardens across the campus. Ground-floor teaching and circulation spaces reduce pressure on internal corridors while creating informal areas for socialising, away from the playing fields. Previously, this site was underutilised, serving as car parking, storage, and an unsupervised sports area.

The building added eight classrooms, supporting COVID-related procedures. Though designed before the pandemic, it promotes a healthy environment and good hygiene. Ground-floor classrooms and WC facilities are directly accessible from the outside, easing corridor congestion and enabling outdoor teaching. A wash trough in the WC ensures convenient hand-washing, reinforcing hygiene and safety for pupils.

Project Information

Client: Ralph Allen School
Location: Bath
Sector: Education
Commissioned: 2010
Status: The Lee Centre Complete – 2013, The Rose Building Complete – 2014, The Katherine Johnson Building Complete – 2020
Budget: ????
GIA: The Lee Centre – 400sqm, The Rose Building – 530sqm, The Katherine Johnson Building – 480sqm

Team

Main Contractor: H Mealing & Sons
QS and PM: Peter Gunning & Partners
Structural Engineer: Momentum
M&E Engineer: e3

Selected Press

April 2022, Architecture Today, ‘Works: Dining hall and Katherine Johnson Building, Ralph Allen School‘, Wendy Perring

Selected Awards

2015, Civic Trust National Award, The Lee Centre, Winner
2014, RIBA National Award, The Lee Centre, Winner
2014, LABC Design Quality Award B&NES, The Rose Building, Winner

Related Projects