Ty Pren

Brecon Beacons, Powys, Wales
2007-2009

Ty Pren is a reinterpretation of a vernacular long house, inspired by the rich local architecture of the Brecon Beacons. This typology is emphasised as a crisp extrusion, without eaves. Passive solar principles have driven the elevation treatment, opening to the southerly views over Pen Y Fan with a more robust treatment protecting against the harsh weather from the north.

Site

Situated in the heart of the Brecon Beacons, this linear Greenfield site in the village of Trallong has a southerly aspect and fine views towards Pen Y Fan. Two years were spent researching and developing the design through site visits, models and prototypes, a period which was used to procure local materials, research local construction methods and to develop our Welsh vernacular adaptation.

Design Approach

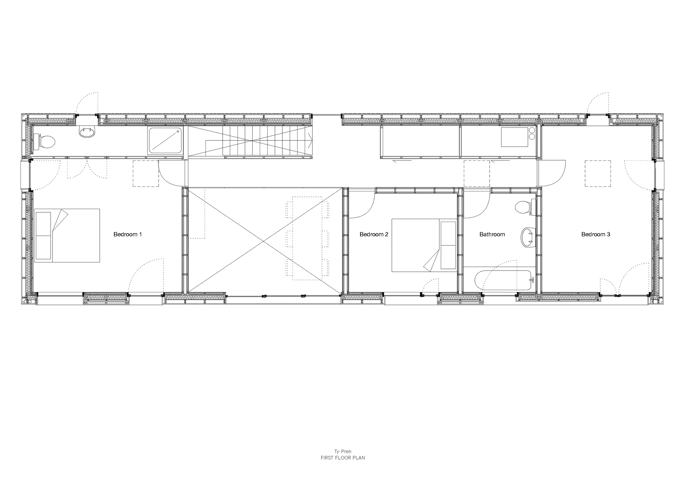
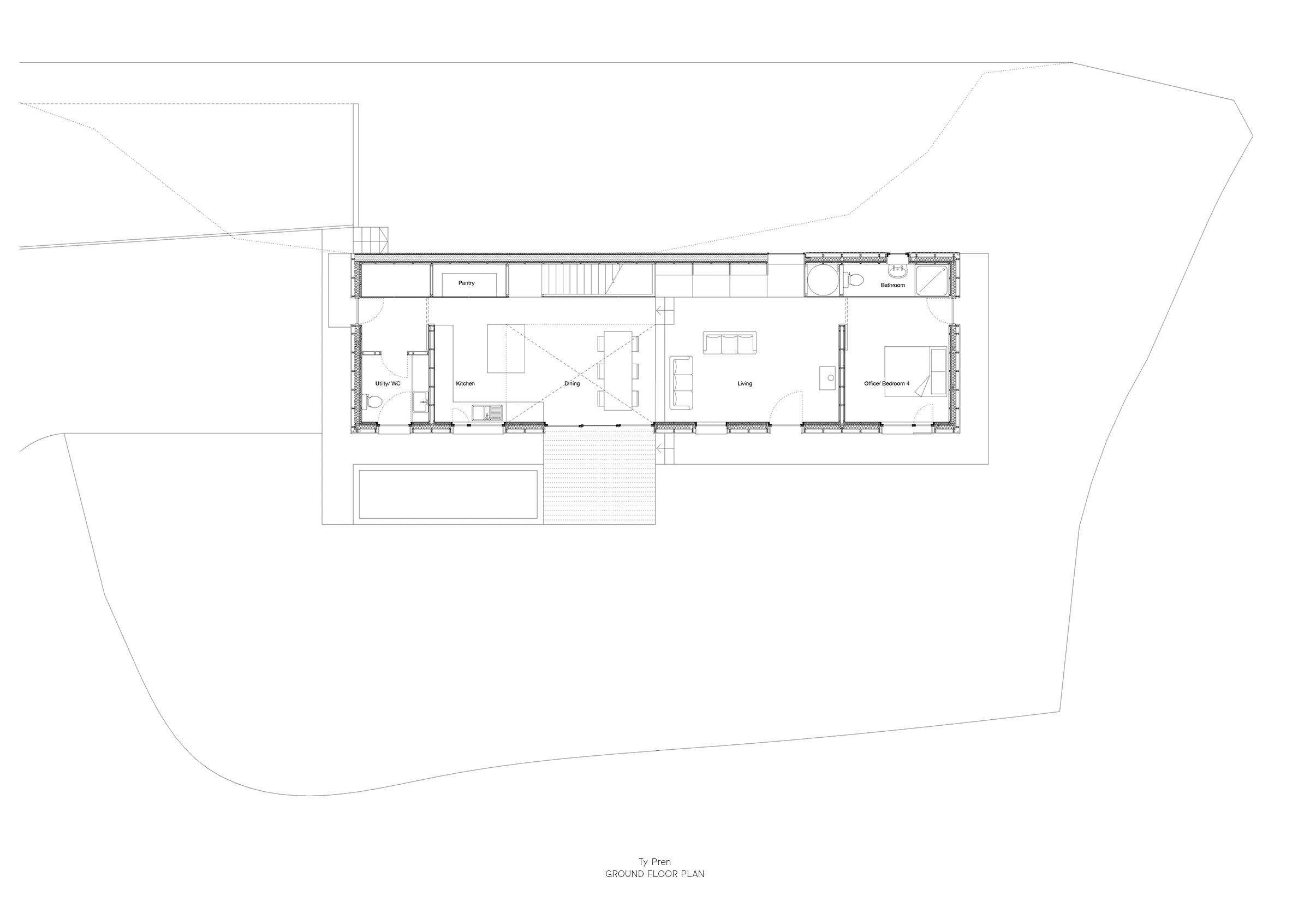
The sensitive location on the edge of the Brecon Beacons National Park called for meaningful engagement with the vernacular. Welsh buildings, added to over time as needs changed, informed the project, which reinterprets familiar forms and materials rather than replicating them. This is paired with a forward-looking approach to environmental sustainability. Internally, the plan is modernist, organised along two axes with services housed in a deep north wall. A double-height central void creates a natural stack, distributing heat from the stove and solar gains to the upper floors. The house demonstrates a low-carbon approach, achieving an emission rate of just 6 kgCO₂ per year.

The Local Vernacular

Powys, in the Brecon Beacons, is shaped by a vernacular of robust stone building and the enduring Welsh longhouse tradition. Local farmsteads, with their thick sandstone walls and sweeping slate roofs, are grounded in the land, their linear forms historically accommodating both people and animals under one roof. Ty Pren takes direct reference from this heritage: its elongated form recalls the longhouse typology, while slate is brought down onto the external walls, echoing the weathered grey stone of neighbouring buildings. In doing so, the house embeds itself within the landscape and architectural language of rural Powys.

Larch Cladding

Ty Pren, meaning ‘House of Wood’, is driven by a timber-led design strategy. Larch for the solar façades was felled from the client’s land two miles away and milled on site. The untreated cladding has a predicted life of 25 years, with eight replacement trees planted; removed boards will be burnt to heat the house. Recycled Welsh slates wrap the roof and north wall, while the east, south and west elevations use a filigree larch skin. SIPs and high-performance windows create an airtight envelope, with sheep’s wool insulation achieving a U-value of 0.15 W/m²K. Locally sourced oak, birch-faced plywood, and lime-based finishes complete the interior with low-toxicity, low-carbon materials.

Project Team

Client: Private Client
Location: Brecon Beacons, Powys, Wales
Sector: Residential
Commissioned: 2007
Status: Completed 2009
Budget: £270,000
GIA: 180sqm

Selected Awards

2010, Grand Designs Eco-house of the Year, Ty Pren, Finalist

Related Projects