Feilden Fowles Studio

London, UK
2015-2016

Feilden Fowles Studio in Waterloo fully embodies the practice’s low-tech, low-carbon design approach and demonstrates its commitment to community education and engagement. The studio is constructed with a UK-sourced timber frame, clad in corrugated cement panels, with clerestory windows bringing in north light over a high boundary wall. Designed to be fully demountable, the studio will eventually be taken apart and carefully reassembled elsewhere when the meanwhile-use site is developed. Its completion marks the second phase of the Waterloo City Farm development.

A Farm, Studio, and Garden

The studio is built on what was an overgrown, neglected sliver of land on the south side of Westminster Bridge, in the London Borough of Lambeth, as part of a collective home for three organisations: Feilden Fowles Architects, Jamie’s Farm, and Oasis Hub Waterloo. In 2014, the charities Jamie’s Farm and Oasis Hub were granted a lease of the site, and Feilden Fowles produced a masterplan encompassing the design of animal pens, a sheltered outdoor classroom, the new studio, and a garden.

Design for Dismantlement and Reassembly

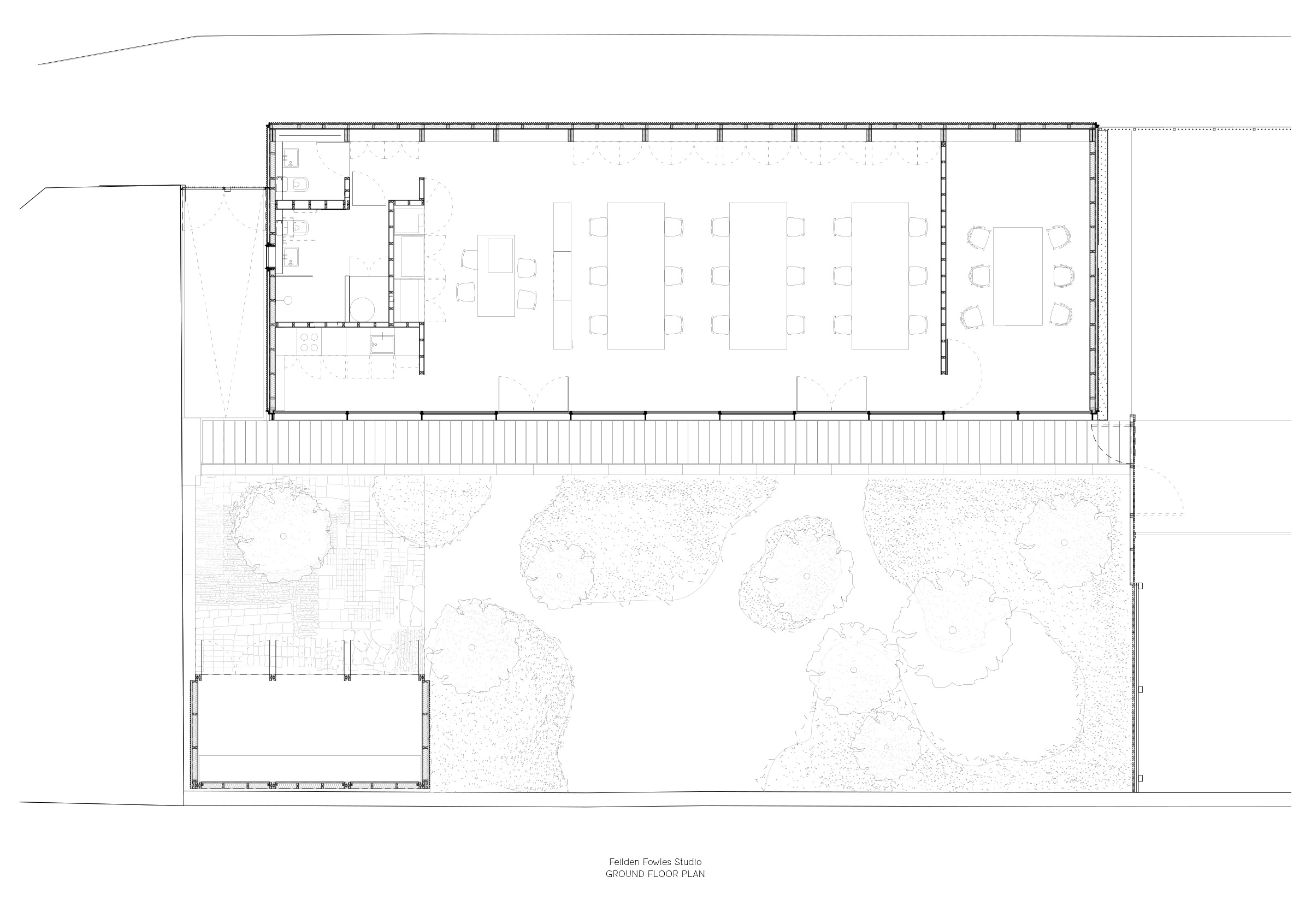
The primary structure is a Douglas fir timber frame, clad with deep burgundy corrugated Onduline bitumen sheets, and designed to be fully demountable. Both the materials and form reference the character of agricultural buildings, reinterpreted for a studio and in keeping with the farm character of the site. Columns define a 1,830 mm grid, three-quarters of a plywood sheet, ensuring efficient use of materials with minimal cuts and waste.

Making a pleasant workspace

The studio’s north-facing clerestory windows take inspiration from the Royal Academy’s life drawing room, where artists have long relied on consistent, clear light. Its orientation aims to create a calm, enduring environment that nurtures creativity, exploration, and dialogue in the daily rhythm of work.

Working with a Garden

The long south-facing elevation is articulated by steel T-columns and floor-to-ceiling glazing, providing uninterrupted views of a seasonal courtyard garden designed by Dan Pearson Studio. Planting is used to create spaces for gatherings, including a long communal table activated during warmer months for lunches and outdoor meetings. The planting design references the productive nature of the farm and is structured around fruiting crabapple and pear trees, as well as shrubs that bloom at different times of the year, bringing colour and vitality across the seasons.

Project Information

Client: Feilden Fowles
Location: London
Sector: Workplace
Commissioned: 2015
Status: Completed 2016
Budget: £180,000
GIA: 133sqm

Team

Structural Engineer: Structure Workshop
Timber Specialist and Carpenter: Timber Workshop
Main Contractor: Miles Builders
Landscape Architect: Dan Pearson Studio

Selected Press

July 2019, Eleanor Young, ‘Feilden Fowles: A learning experience’, Damn Magazine
May 2019, Susanne Kippenberger, ‘Für den Eigenbedarf’‘, Sonntag
March 2019, Register podcast, interview by Andrew Clancy
August 2018, Oliver Wainwright, ‘Design a penthouse – then feed the pigs’, The Guardian
January 2017, David Grandorge, ‘Less is More‘, Architecture Today

Selected Awards

2017, Wood Awards Small Project, Feilden Fowles Studio, Winner
2017, RIBA London Award, Feilden Fowles Studio, Finalist
2017, AJ Small Projects, Feilden Fowles Studio, Finalist

Related Projects