Charlie Bigham's Food Production Campus

Somerset, UK
2015-2017

With the firm belief that the highest quality food can only be produced in a high quality working environment, renowned food production company, Charlie Bigham’s, set about this aspiration to create an outstanding workplace in the unique landscape of Dulcote Quarry, Somerset. The project will be their long term home, and makes spatial provision for the business to grow organically. A masterplan revitalises the natural landscape and ecology by siting future kitchens and infrastructure along the southern edge, allowing the north to flourish; and proposes a thriving campus of food production and communal pavilions for employees.

Site

Dulcote Quarry, on the outskirts of Wells in Somerset, is a disused limestone quarry carved from the carboniferous limestone of the Mendip Hills. The excavation left a vast bowl-shaped void, encircled by vertical rock faces up to 60 metres high, exposing the area’s geological strata with remarkable clarity. Once worked extensively for aggregate and building stone, the quarry floor now provides a level platform framed by sheer walls of pale red limestone. Its geology is characteristic of the Mendips—hard, durable and rich in fossil content—while the site’s industrial legacy offers a unique, contained landscape for adaptive re-use and regeneration.

Industrial Pragmatism

There are also some parallels between the production line of a food production building and the linear processing of an aggregate quarry, and the industrial forms of 1960’s Dulcote Quarry certainly provide an architectural context for its modern expression. Although the proposed buildings are very different in substance, this historic context played an important part in developing an attitude towards material, structure and form.

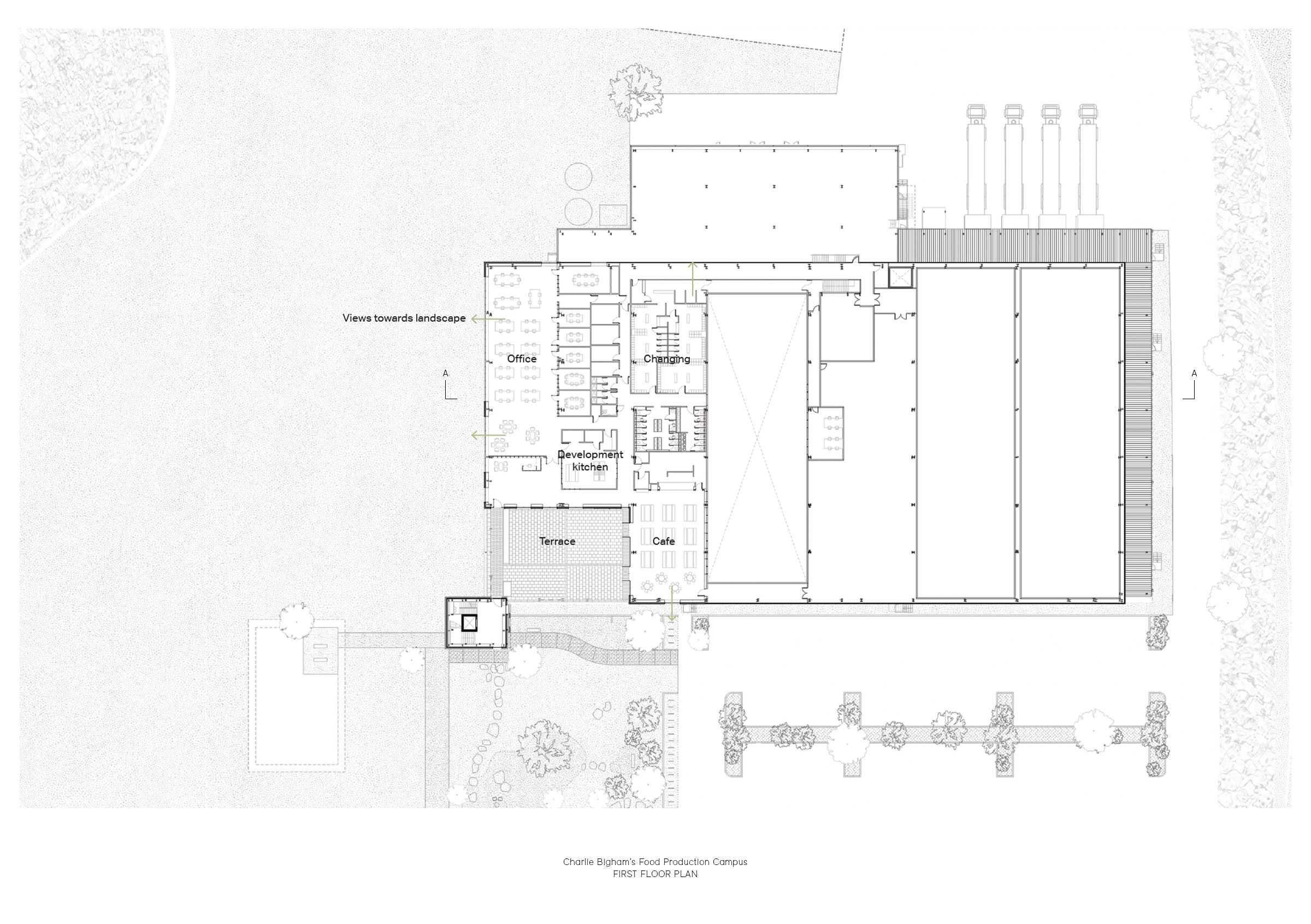
An articulated shed

The design concept for the completed first phase enhances the typical industrial typology and its relationship with the site. The external form is a composition of asymmetric roofs, which shift in size to reflect the changing internal functions, and enables north facing roof lights to equally distribute daylight through the office and production spaces. Windows are carefully positioned within the production to allow natural daylight deep into the plan whilst creating an important connection back to the landscape.

Articulating Function Through Material

Entry to the building is via a generously scaled entrance tower – a recognisable, timber element. The material language of timber carpentry extends from the staircase to the internal lining of the office and welfare spaces where, conceived as free standing furniture elements, a framework of timber studs create an open but layered office space.

Construction

The construction strategy balances industrial robustness with crafted precision. A steel portal frame provides the primary structure, enabling large, column-free production spaces suited to the operational requirements of food manufacturing. The structural grid allows flexibility for future adaptation and expansion in line with the long-term masterplan. Externally, locally sourced limestone grounds the building within the geology of Dulcote Quarry, while timber elements introduce warmth and tactility to the workplace environment. Prefabricated components were used where possible to improve build efficiency and reduce waste. Careful detailing of junctions between steel, stone and timber ensures durability in a demanding industrial setting, while expressing a clear and legible tectonic logic throughout the campus.

Project Information

Client: Charlie Bigham’s Ltd
Location: Dulcote, Somerset, UK
Sector: Workplace
Commissioned: 2015
Status: Completed 2017
Budget: ????
GIA: 6500sqm

Team

Main Contractor: TSL Projects
Structural Engineer: PEP Civils and Structures Ltd
Landscape Architect: Grants Associates

Selected Press

June 2023, Hayley Chivers, ‘AJ, Shelf life: Revisiting Feilden Fowles’ factory for Charlie Bigham‘, Architects’ Journal
2019, ‘Charlie Bigham’s Food Production Campus‘, EU Mies Award
November 2018, Ike Ijeh, ‘Building Study‘, Building Design
October 2018, Manon Mollard, ‘Ingredients for Success‘, Architectural Review
May 2018, ‘Charlie Bigham’s‘, Wallpaper*

Selected Awards

2019, EU Mies Award 2019, Charlie Bigham’s Food Production Campus, Nominee
2018, RICS Commercial and Design through Innovation Award 2018, Charlie Bigham’s Food Production Campus, Shortlist
2018, RIBA South West Building of the Year 2018, Charlie Bigham’s Food Production Campus, Winner
2018, RIBA South West Award 2018, Charlie Bigham’s Food Production Campus, Winner

Related Projects